Log Homes
Learn more about our models & plans + construction design & engineering
Handcrafted with passion and care.
Building a Log Home on Your Terms
Our handcrafted log homes offer living spaces ranging from 720 sq.ft. — all the way up to whatever you’ve got in mind! There’s literally no limit to what we can build, whether it’s log cabins, custom log homes, exterior log features like bridges, archways, fences & gates, or interior accents like log trusses, stairway railings, furniture or more!
We want you to visualize your dreams so we can create a log home you can enjoy for a lifetime. Check out our previous log home builds in the Models / Plans section. We have log home shells and log cabin kits, or, if you’ve got your own creation in mind, we have a full-service Design Department that’s ready to put what’s in your head to paper, and bring it to life.
Every masterpiece we create starts as an idea.
Sure, wood is the primary raw material that goes into what we build, but there is no creation without that spark — that imaginative energy that gets the ball rolling. It’s our game-changer and our proudest selling point. It’s why you need to look at TJ’s Log & Timber for your custom log home before looking at anyone else.
We’re not just a bunch of lumberjacks.
…although we’ve been called that from time to time. We are dedicated artisans and craftsman who work in big timber, hand-crafting every product as opposed to milling it. Family-owned for more than 40 years, we design, harvest, hand-peel and build the finest wood structures you’ll find in Colorado and beyond which may be why we are the leader in handcrafted log homes in Colorado.
In-House Design Experts
TJ’s in-house design department will work closely with you to create a log home that fits your lifestyle. Our in-house design services are implemented with one single goal in mind, to help our customers obtain a working set of quality construction plans in a more timely fashion and at a lower cost. When designing off one of our models our base design agreement provides for up to three meetings, in which our customers can layout the home and make revisions to ensure you get it just the way you want it.
Have Questions?
We love log homes, furniture, accents, deck railng, and more. We’re pasionate about this and would be more than happy to talk.
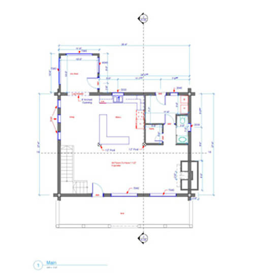
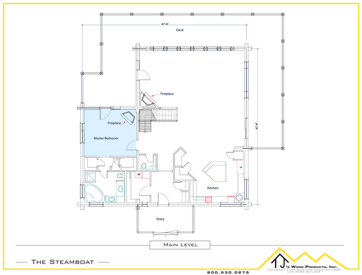
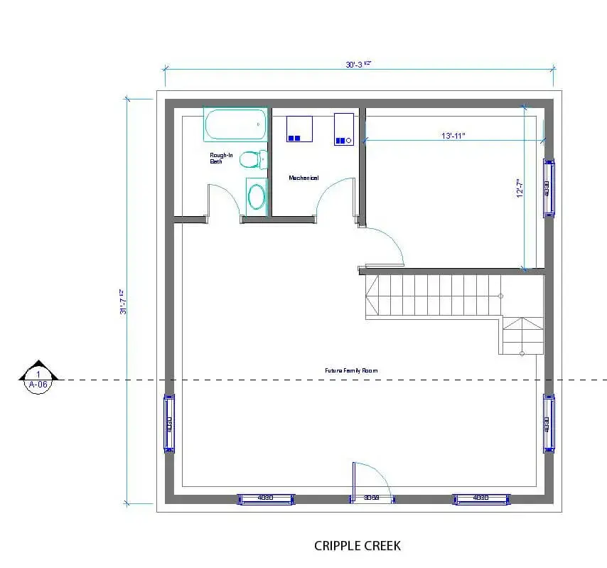
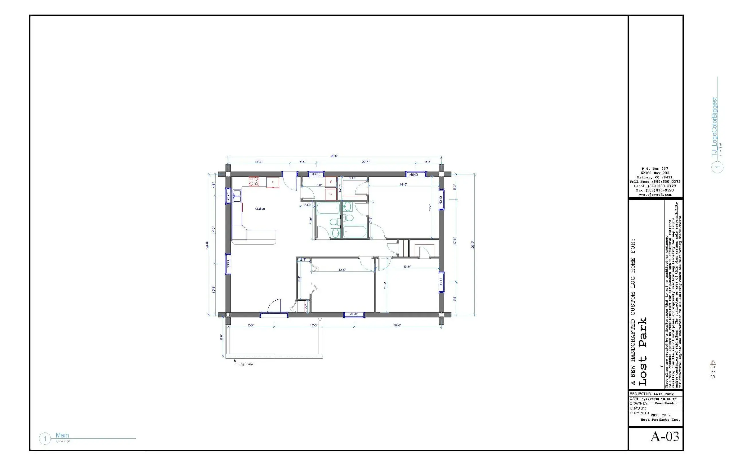
Log Home Plans & Models
- Under 1,000 Sq. Ft.
- 1,000 - 2,000 Sq. Ft.
- 2,000 - 3,000Sq. Ft.
- 3,000 - 4,000 Sq. Ft.
- Over 4,000 Sq. Ft.
Under 1,000 Square Feet
Embrace the simplicity of our cozy log homes, ideal for those seeking starter or hunting cabins as their refuge from the bustling city life. These charming retreats offer the perfect blend of comfort and rustic charm, providing a serene escape into the heart of nature. Whether you're starting your log home journey or seeking a peaceful retreat, these homes are designed to welcome you with open arms.
The Classic
- Dimensions: 20x30
- Footage: 600 SF MAIN
- Footage: 320 SF LOFT
- Bedrooms: 2
- Bathrooms: 1
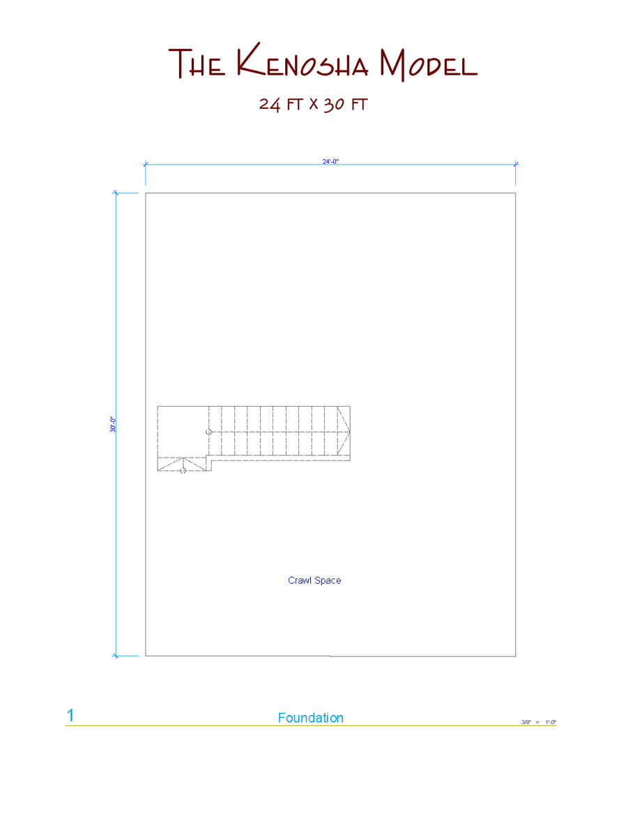
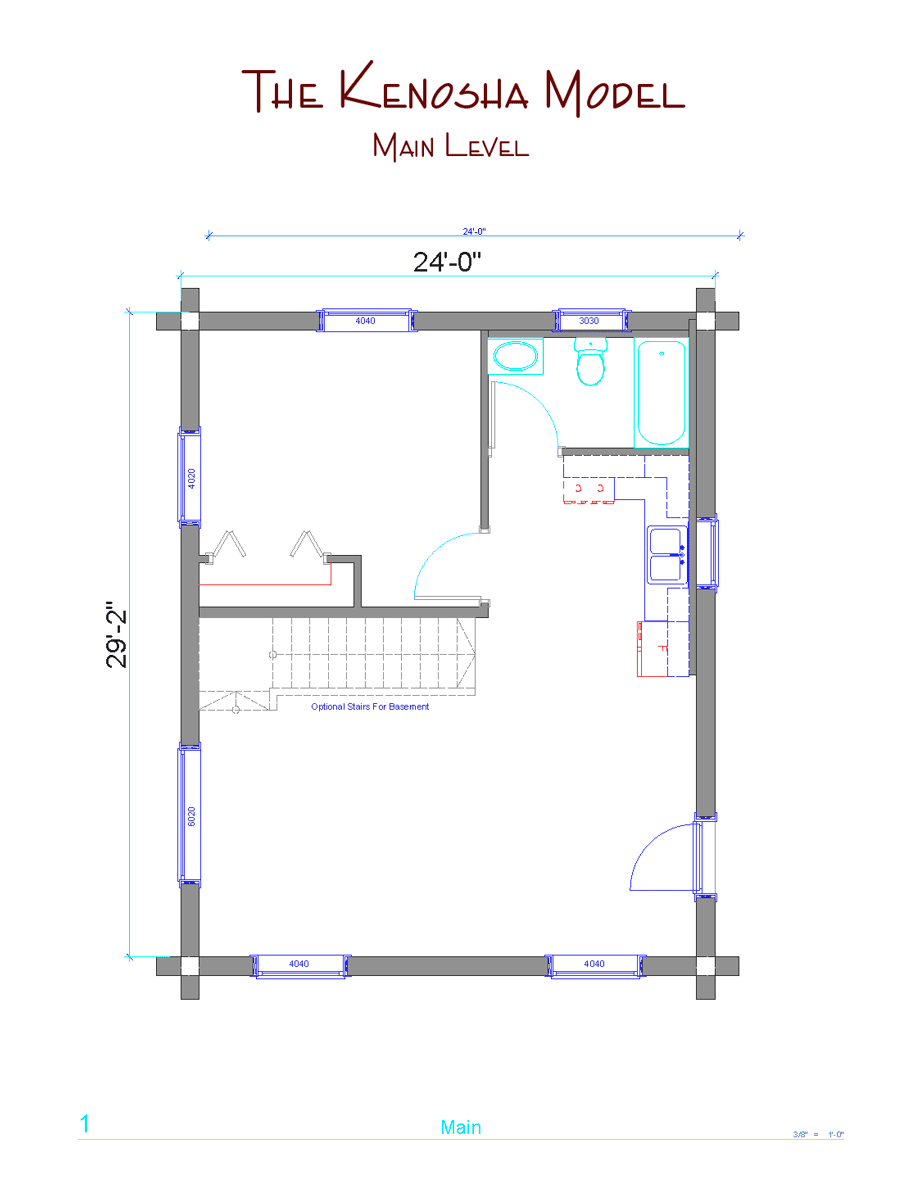
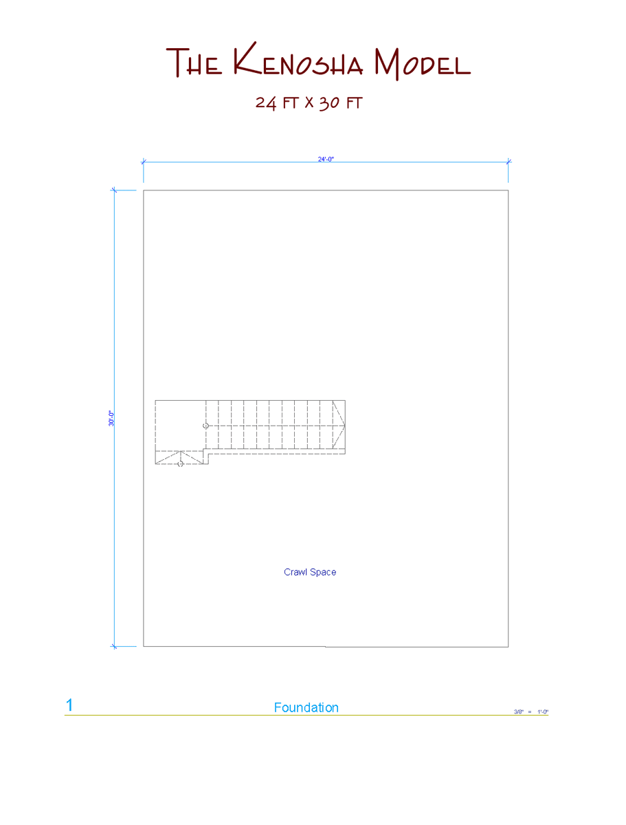
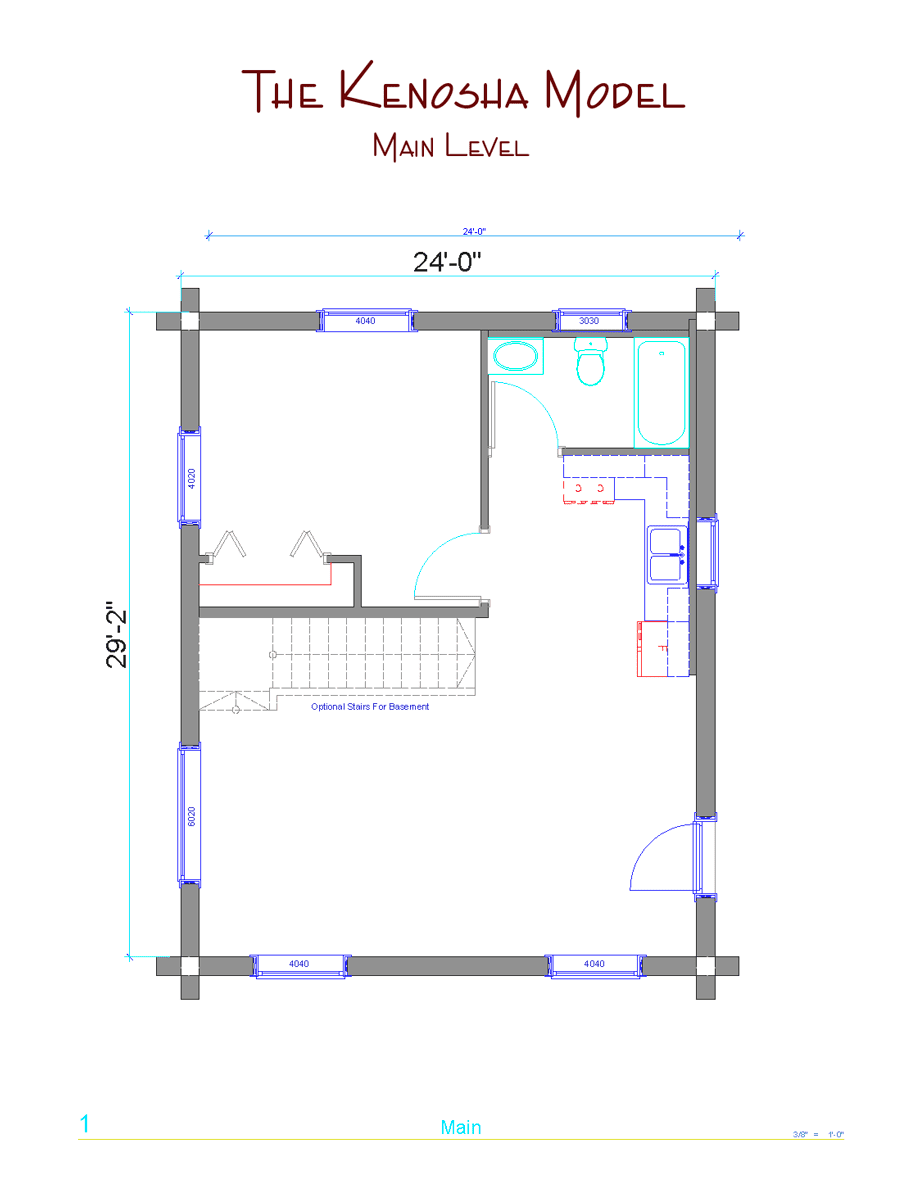
The Kenosha
- Dimensions: 24x30
- Footage: 720 SF MAIN
- Footage: 340 LOFT
- Bedrooms: 2
- Bathrooms: 1
1,000 - 2,000 Square Feet
Discover the perfect log homes for those seeking the warmth of a small family retreat or planning to start a family These homes offer the best of both worlds, providing a comfortable and cozy environment while ensuring you have ample room for your loved ones and guests. Embrace the charm of a log home that's designed to accommodate your growing family and create lifelong memories. Starting at $81,000.
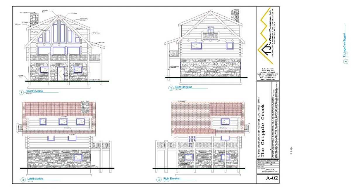
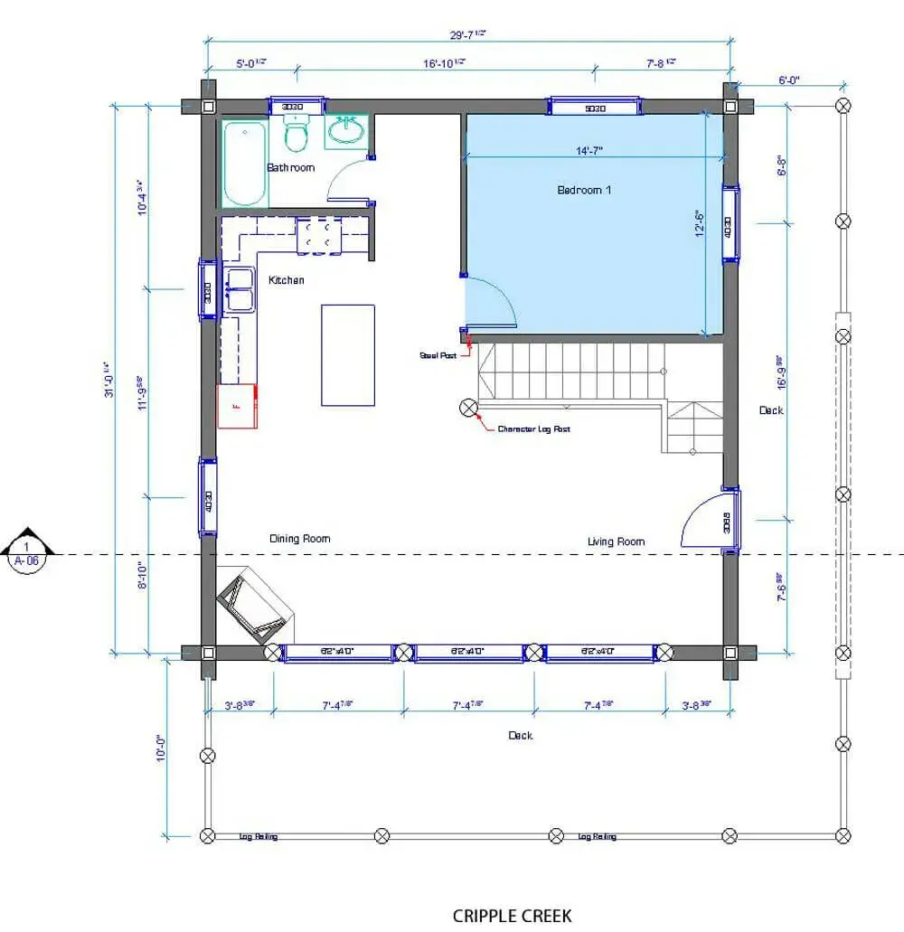
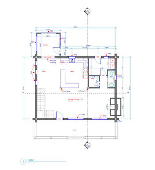
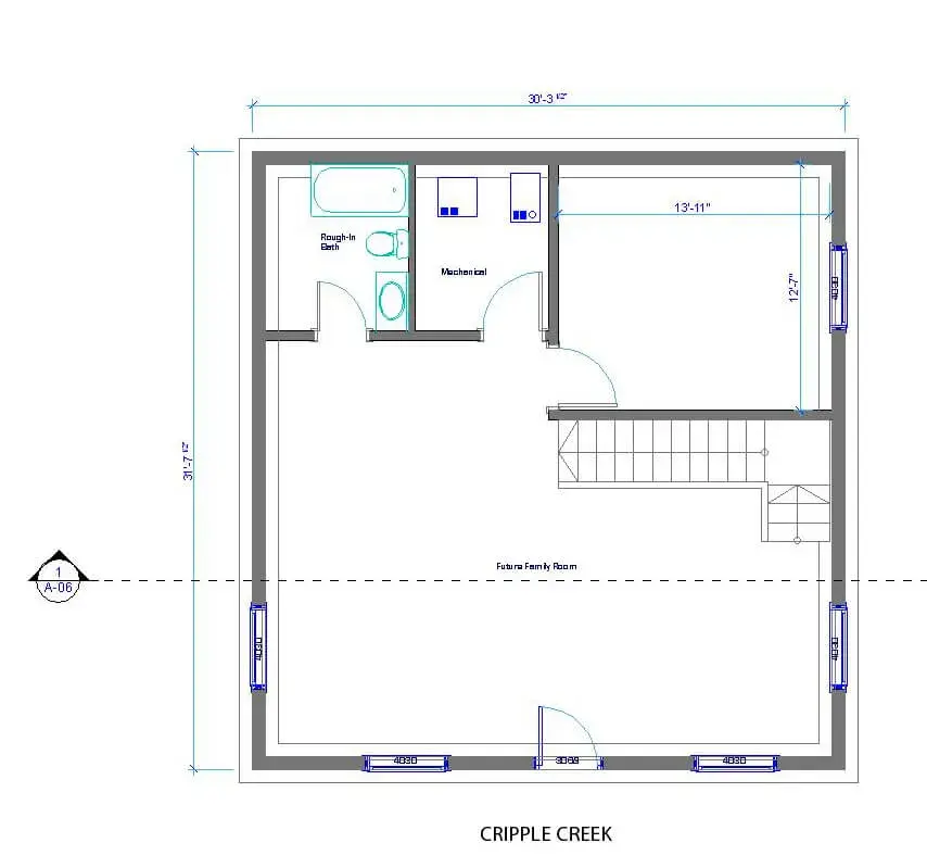
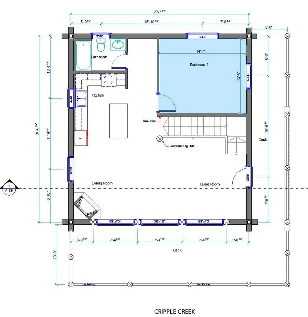
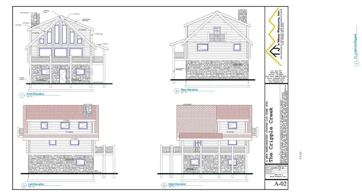
The Cripple Creek
- Dimensions: 30x32
- Footage: 960 SF MAIN
- Footage: 697 SF SECOND
- Bedrooms: 2-3
- Bathrooms: 2
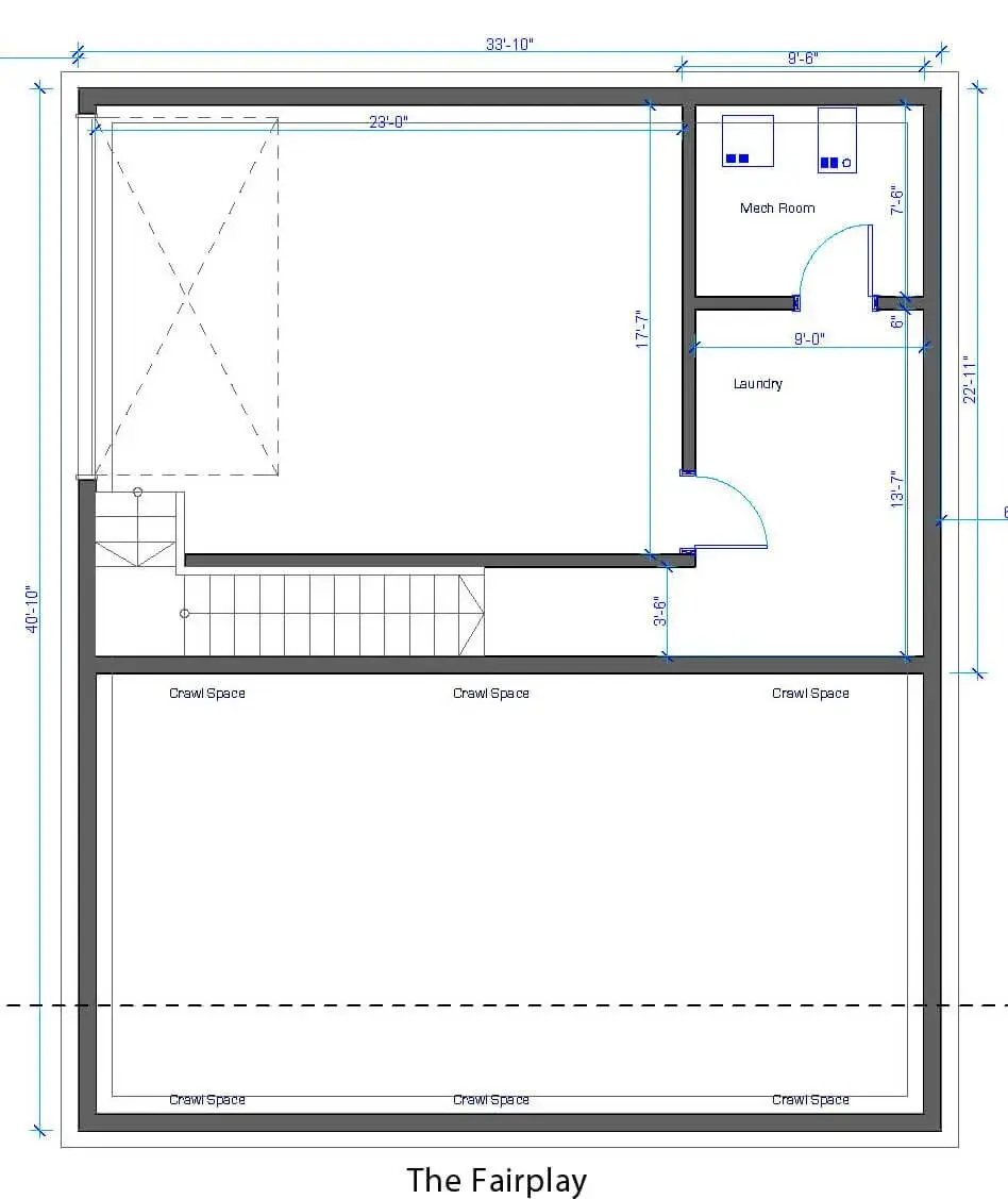
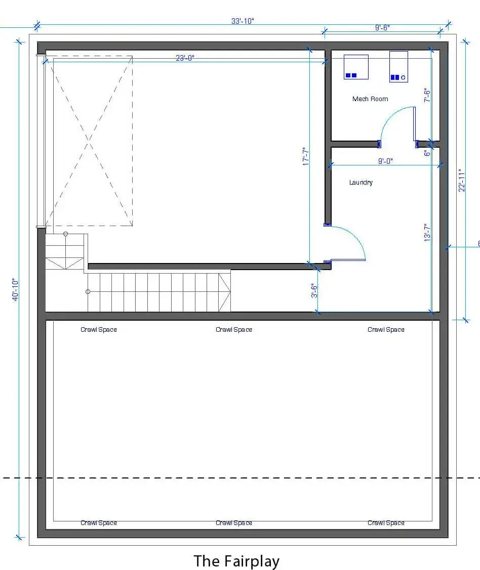
The Fairplay
- Dimensions: 31x44
- Footage: 1364 SF MAIN
- Bedrooms: 3-4
- Bathrooms:3-4
The Glacier
- Footage:832 SF MAIN
- Footage: 602 SF LOFT
- Dimensions: 26x32
- Bedrooms: 2-3
- Bathrooms:2
The Shawnee
- Footage:1008 SF MAIN
- Footage:700 SF +- LOFT
- Dimensions:28x36
- Bedrooms: 2-4
- Bathrooms:2-3
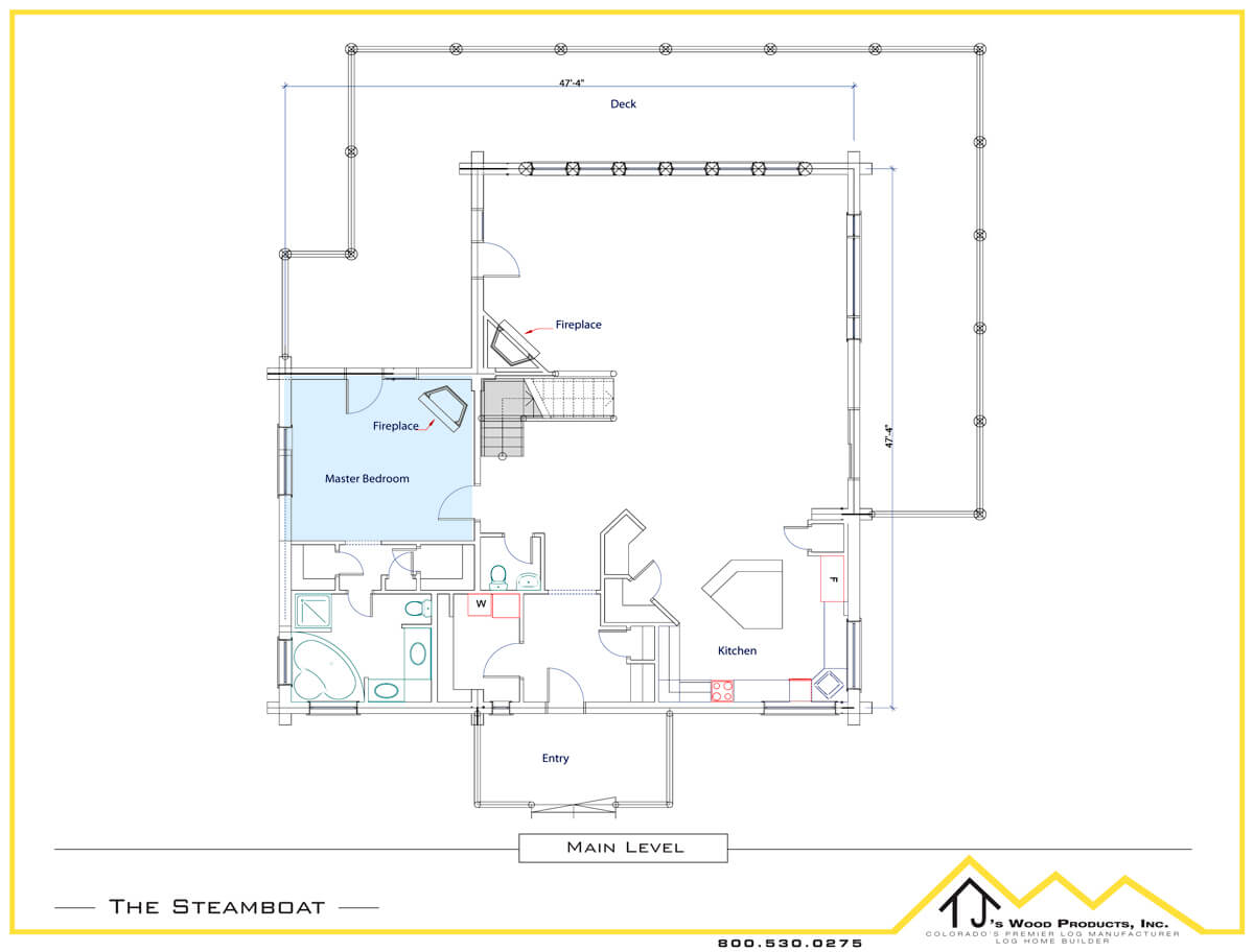
The Weston
- Footage:1353 SF MAIN
- Footage:635 SF SECOND
- Bedrooms: 3-4
- Bathrooms:3-4 Bath
2,000 - 3,000 Square Feet
Introducing the perfect mid-sized homes, tailored for year-round living or as your cherished holiday retreat. These homes embody the essence of spacious log living, making them an excellent choice whether you're seeking a permanent residence or a serene escape. Enjoy the generous space, comfort, and everything you desire in a log home, all within these meticulously designed abodes. Call for a quote!
The Alamosa
- Footage:1769 SF MAIN
- Footage: 1052 SECOND
- Bedrooms:3-4
- Bathrooms:3-4
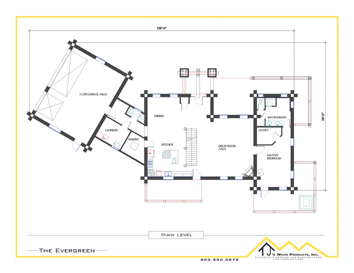
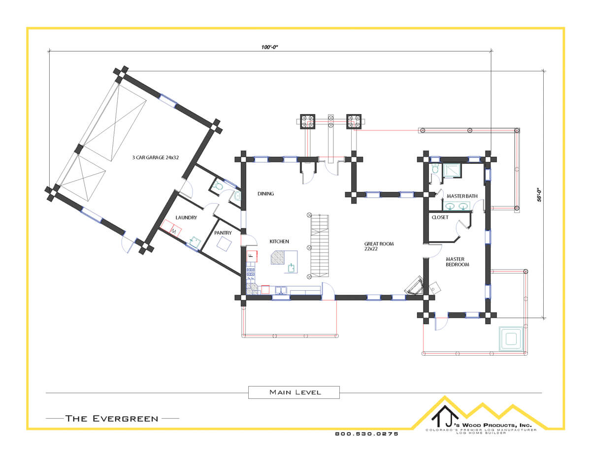
The Evergreen
- Footage: 2082 SF MAIN
- Footage:539 SECOND
- Bedrooms: 3-4
- Bathrooms: 3
The Keystone
- Footage: 1728 SF MAIN
- Footage: 1126 SF SECOND
- Bedrooms: 3-4
- Bathrooms:3-4
3,000 - 4,000 Square Feet
Explore our spacious log homes, tailor-made for those with large families or a penchant for hosting guests. These homes offer ample room for everyone, ensuring that each family member can have their own private haven to relish the unparalleled comfort and charm that a log home provides. Experience the perfect blend of roominess and warmth in these inviting retreats. Call for a quote!
The Breckenridge
- Footage:2128 SF MAIN
- Footage:1151 SF SECOND
- Bedrooms: 4-5
- Bathrooms:4
The Monarch
- Footage: 1930 SF MAIN
- Footage: 1930 SF MAIN
- Bedrooms:4-5
- Bedrooms: 4
The Sedalia
- Footage: 2005 SF MAIN
- Footage:335 SF LOFT
- Bedrooms:2-3
- Bathrooms: 2-3
Over 4,000 Square Feet
Elevate your mountain living with these exquisite log home designs that will make you the envy of the peaks. These luxurious and spacious dwellings are bound to captivate all who lay eyes on them. Step into the world of opulent log home living with these remarkable showcase homes, where grandeur meets the rustic charm of the mountains. Call for a quote!
The Aspen Lodge
- Footage:2514 SF MAIN
- Footage:1675 SECOND
- Bedrooms: 3-5
- Bathrooms:3-5
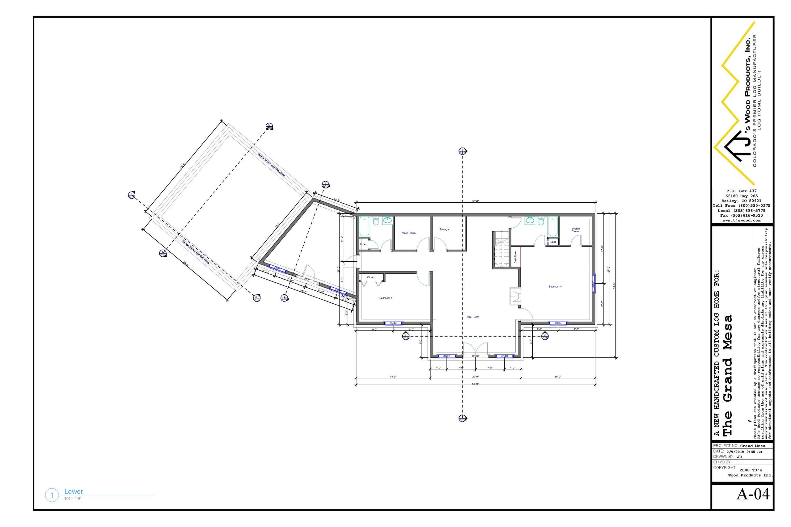
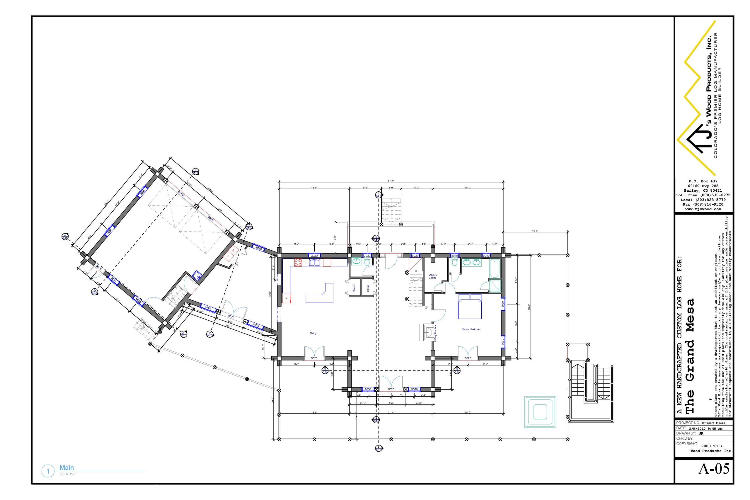
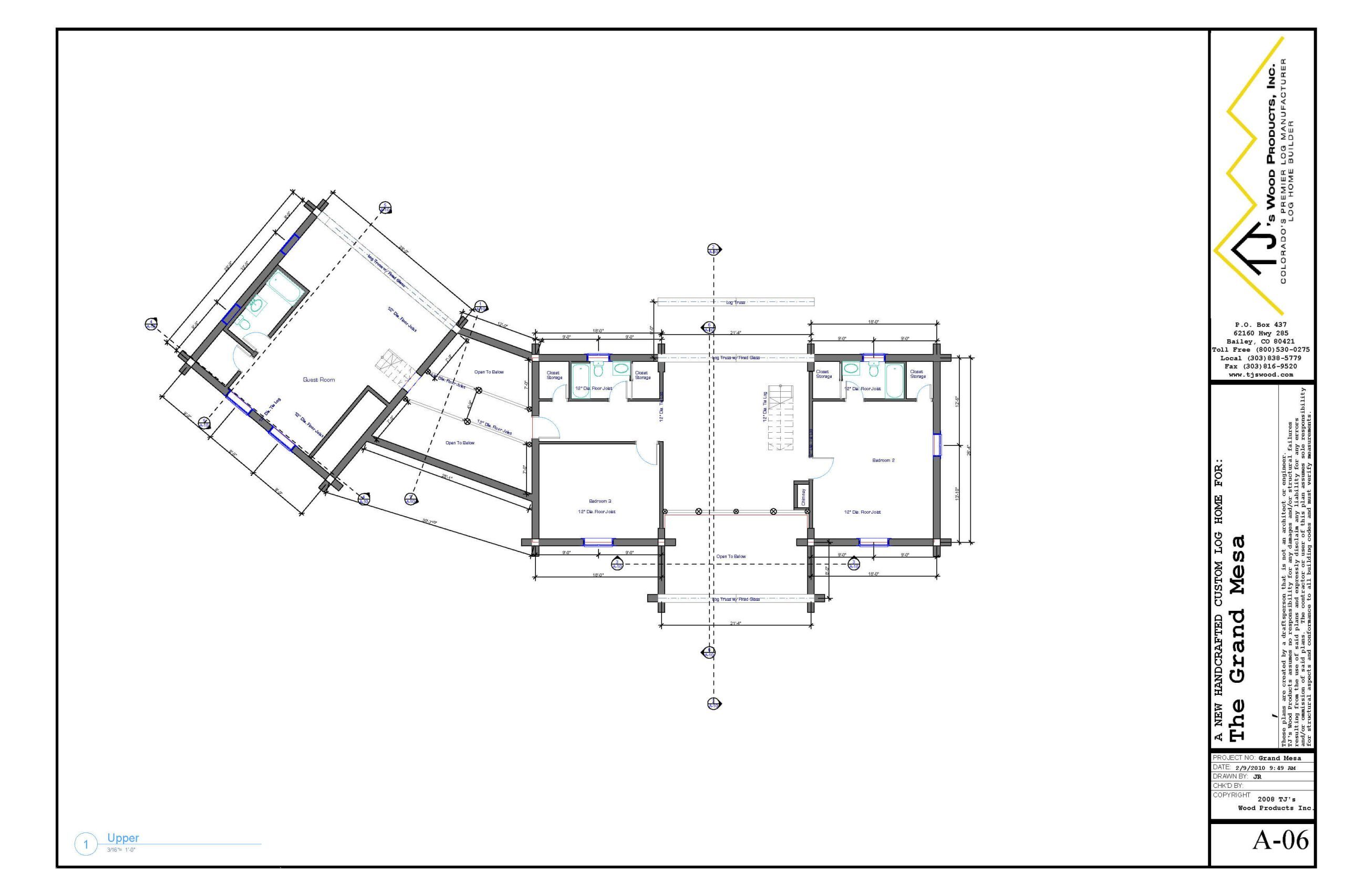
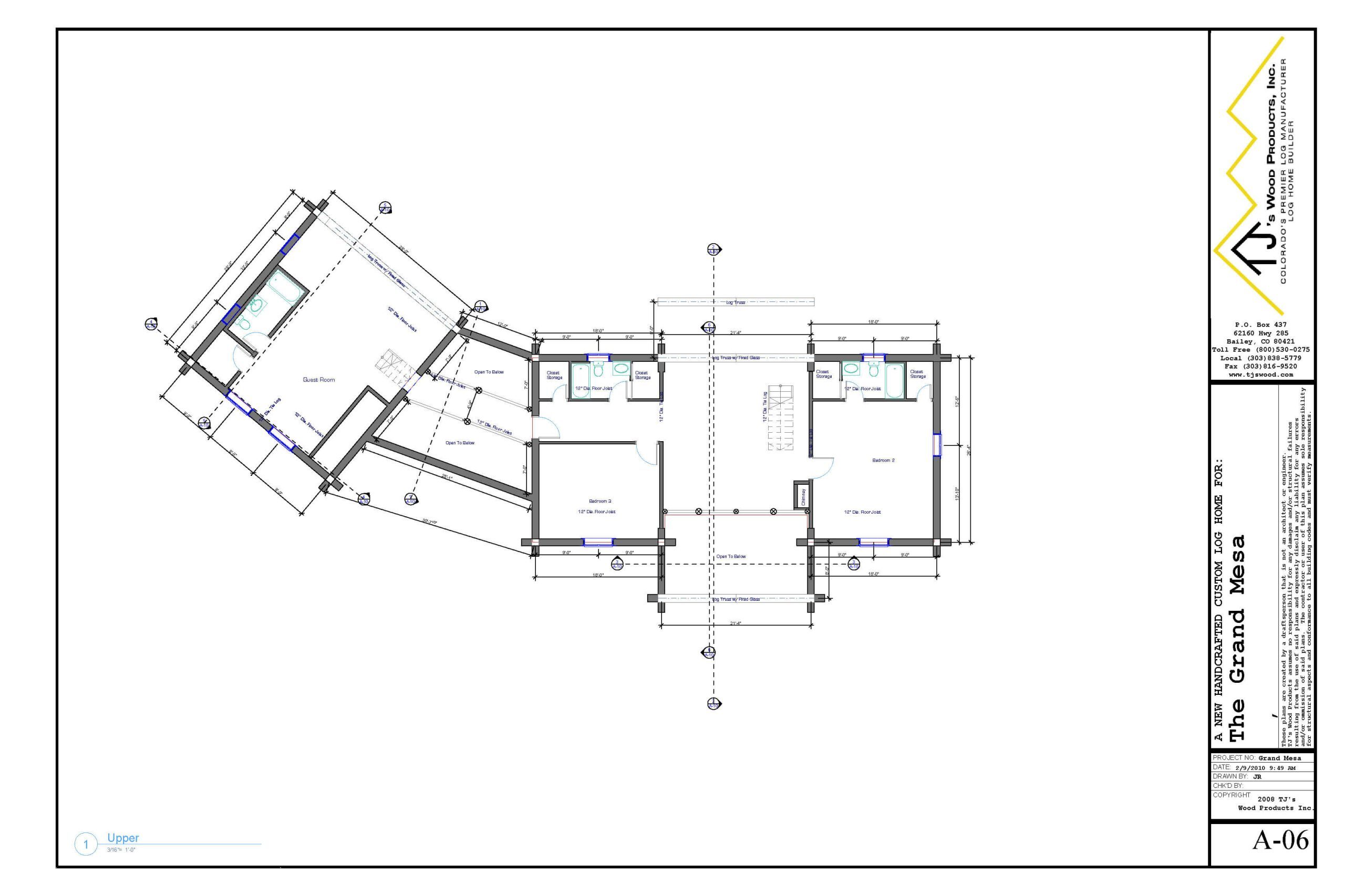
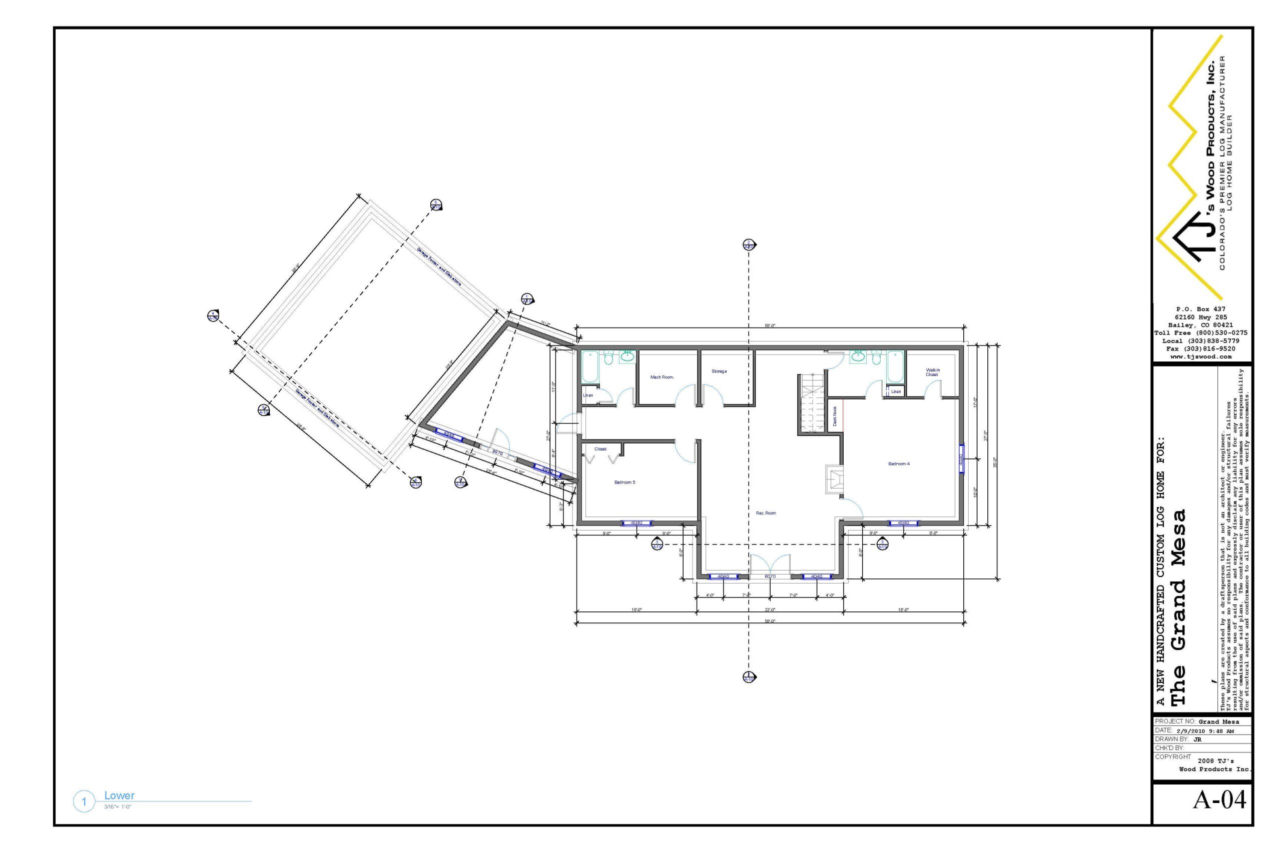
The Grand Mesa
- Footage:2860 SF MAIN
- Footage:2396 SF SECOND
- Bedrooms:3-5
- Bathrooms:3-5
We not only build homes, we build long-term partnerships
TJ’s works almost exclusively with Pence Engineering in order to provide streamlined services that save both time and money for our clients.
Pence Engineering, LLC is a full service structural engineering and construction consulting firm with experience in all avenues of the design and construction industries. With numerous years of hands-on construction experience and 20 plus years of engineering experience, we take great pride in our ability to build professional, honest and personalized relationships with our clients which include owners, architects, contractors, builders and other consultants. We provide creative structural solutions that ensure integrity, constructability and value engineering while accommodating the preferences and visions of the individual client.
(303) 838-5779
Good old fashioned phone call.
info@tjslogandtimber.com
Email us at your convenience.
